Frederikssund Svømmehal
Lokation:
Bonderupvej 2C, 3600 Frederikssund
Type:
Vores rolle:
Arkitekt, byggeleder, fagtilsyn, projektering
Bygherre:
Frederikssund Kommune Ejendomme
Entrerpenør:
Ingeniør:
Vi havde egne konstruktionsingeniører med, men specialviden vedr. vandbehandling og svømmehalsteknik mv. var b.la. Cowi
Størrelse:
5.500 m²
Årstal:
2018-2020
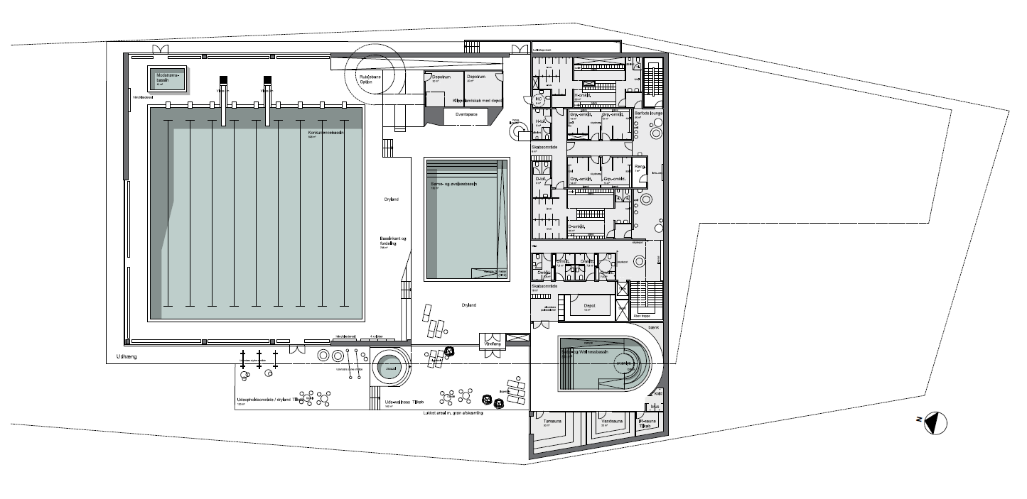
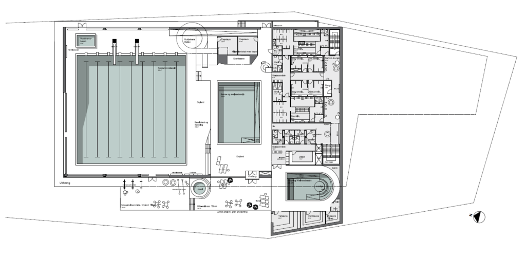
Beskrivelse:
Frederikssund Kommune ønskede at opføre en ny svømmehal. I første omgang blev den udbudt som totalentreprise, hvor vi skulle stå for fagtilsyn. Sagen udviklede sig for vores vedkommende, da kommunen fandt meget af materialet fra totalentreprenøren mangelfuldt og ikke i den ønskede kvalitet. Derfor blev vi sat til at gentænke projektet, så det kunne leve op til deres krav og ønsker:
En svømmehal i tre etager med omklædnings- og mødefaciliteter på i alt 5.500 m², heraf svømmebassiner på 1.600 m², omklædningsfaciliteter på 360 m² og wellnessområde på 240 m².


